Trilocale in vendita

Bruzolo, Via F. Marconcini
€ 129.000
3 locali 3 locali
84 Mq 84 Mq
2 bagni 2 bagni

Trilocale in vendita

Bruzolo, Via F. Marconcini

Descrizione annuncio

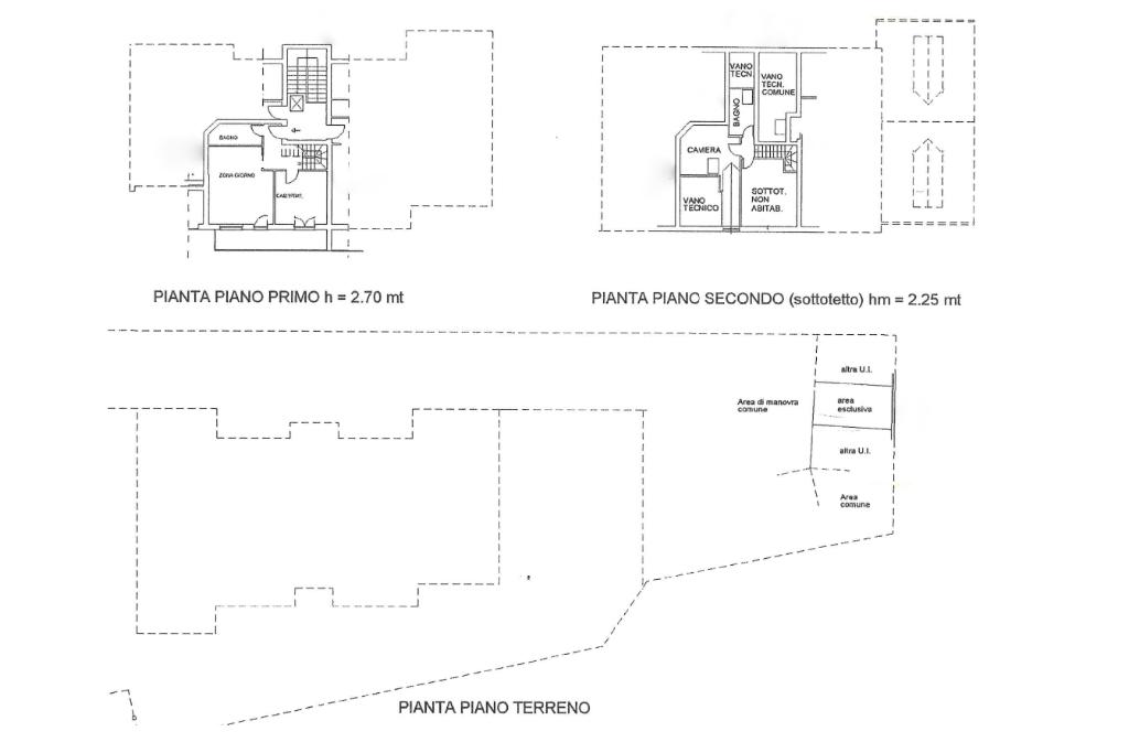
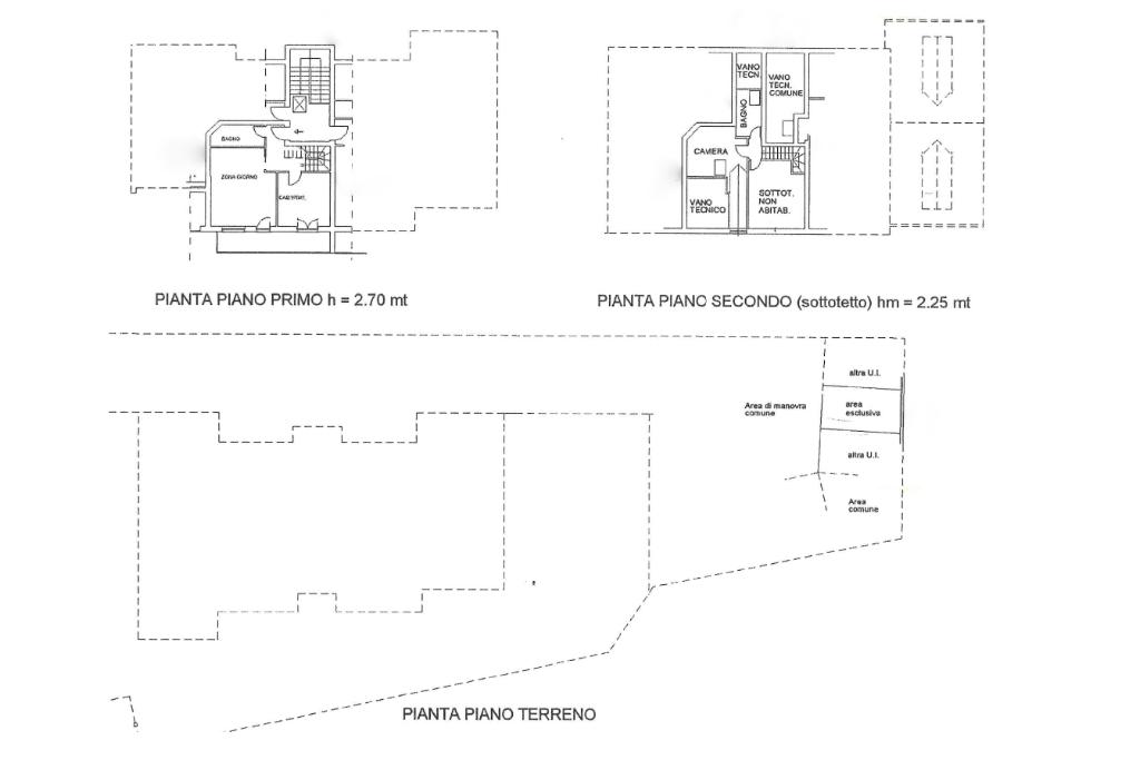
Appartamento trilocale situato in una zona residenziale soleggiata, in contesto tranquillo e ben servito. L’immobile è posto al primo piano del condominio. Si sviluppa su due piani abitativi, con finiture di pregio e materiali di alta qualità. Al primo livello, l'ingresso si apre sul disimpegno che accede alla zona giorno open space, composta da cucina e soggiorno con affaccio su un balcone con vista panoramica sulle montagne circostanti. Completano il piano un bagno dotato di box doccia, attacchi per la lavatrice e areazione forzata, e una camera da letto singola anch'essa con affaccio sul balcone. Il secondo livello è mansardato presenta travi in legno a vista, creando un’atmosfera accogliente e raffinata, accessibile tramite una elegante scala in marmo. Il piano include un bagno con box doccia e velux, una cabina armadio e una spaziosa camera matrimoniale.

Gli infissi sono in PVC, garantendo ottima isolamento termico e acustico.

Il condominio è dotato di pannelli solari termici per il funzionamento dell' impianto di riscaldamento dell’acqua, contribuendo all’efficienza energetica dell’immobile.

L'impianto di riscaldamento è centralizzato con caldaia a condensazione e contatori per ogni singolo appartamento.

Completa la proprietà un box auto situato all’interno del cortile condominiale, oltre a un posto auto nello stesso cortile.

Mostra tutto

Nelle vicinanze

Trasporto pubblico Trasporto pubblico
Bruzolo
Bruzolo
1,1 Km
San Giorio
San Giorio
1,9 Km
Scuole Scuole
Scuola Primaria di Chianocco
1,6 Km
Farmacia Farmacia
Farmacia
1,8 Km
Supermercati Supermercati
Carrefour Market
2,7 Km
UniEuro
2,7 Km
Negozi Negozi
Compro Qui
1,8 Km
Negozi
1,8 Km
Bar Bar
Bar Italia
1,8 Km
Ristoranti Ristoranti
Trattoria
480 m
Arlecchino Pizzeria King Kebab Di Chianocco
1,0 Km
Antica Trattoria Castel Nuovo
1,6 Km
Peccati di Gola
1,8 Km
L'Osteria di Pavaglione
2,3 Km
Mostra tutto

Caratteristiche

Rif.:
60987103
Piano:
1 di 2 (Piano su più livelli)
Box:
1
Posti auto:
1
Balconi:
1
Camere da letto:
2
Mostra tutto
Prezzo Prezzo
€ 129.000
Rata mutuo Rata mutuo
€ 609 / mese
Spese annue Spese annue
€ 1.100
Proponi il tuo prezzoProponi il tuo prezzo

Classe Energetica

B
B
B
B
B
B
B
B
B
EP globale non rinnovabile:
56.81 kW h/m² anno
EP globale rinnovabile:
23.80 kW h/m² anno
EP invernale del fabbricato:
EP estiva del fabbricato:
Anno di costruzione:
2010
Riscaldamento:
Centralizzato
Tipo impianto:
A radiatori
Tipo alimentazione:
Metano

Ti interessa visionare l'immobile?

Fissa un appuntamento  Fissa un appuntamento

Richiedi informazioni

Clicca su Leggi per aprire l'informativa
* Questi campi sono obbligatori

Calcola il tuo mutuo

Semplice e senza impegno
Anticipo

( % )
Mutuo

( % )

pochi semplici passi

inserisci i tuoi dati
Questionario completato
Grazie per aver richiesto un appuntamento senza impegno con un nostro Consulente del Credito e Assicurativo.

Hai inserito correttamente tutti i dati necessari e a breve riceverai una e-mail con un link da convalidare per inviare i tuoi dati.
Affiliato
Immobiliare Bussolin Sas
Via Traforo, 12B 10053 Bussoleno (TO)
Via Traforo, 12B 10053 Bussoleno (TO)
Zona: Bussoleno-Chianocco-Bruzolo-San Giorio di Susa
Mostra su mappa
Orari: Dal lunedì al venerdi: 09:30 - 13:00 / 15:00 - 19:00 ; il Sabato 09:30 - 13:00 / 15:00 - 19:00.
Affiliato
Immobiliare Bussolin Sas
Via Traforo, 12B 10053 Bussoleno (TO)

2025 Tecnocasa Franchising S.p.A. - P. IVA 08365160152 - Via Monte Bianco 60/A 20089 Rozzano (MI). Ogni agenzia ha un proprio titolare ed è autonoma. Privacy policy | Policy utilizzo | Cookie policy