Capannone in vendita

Bussoleno, via fabbrica da fer
€ 215.000
6 locali 6 locali
1212 Mq 1212 Mq
5 bagni 5 bagni

Capannone in vendita

Bussoleno, via fabbrica da fer

Descrizione annuncio

Capannone ad uso industriale/artigianale in vendita, situato in posizione strategica e di forte visibilità grazie al passaggio della linea ferroviaria e alla collocazione angolare tra due strade statali.

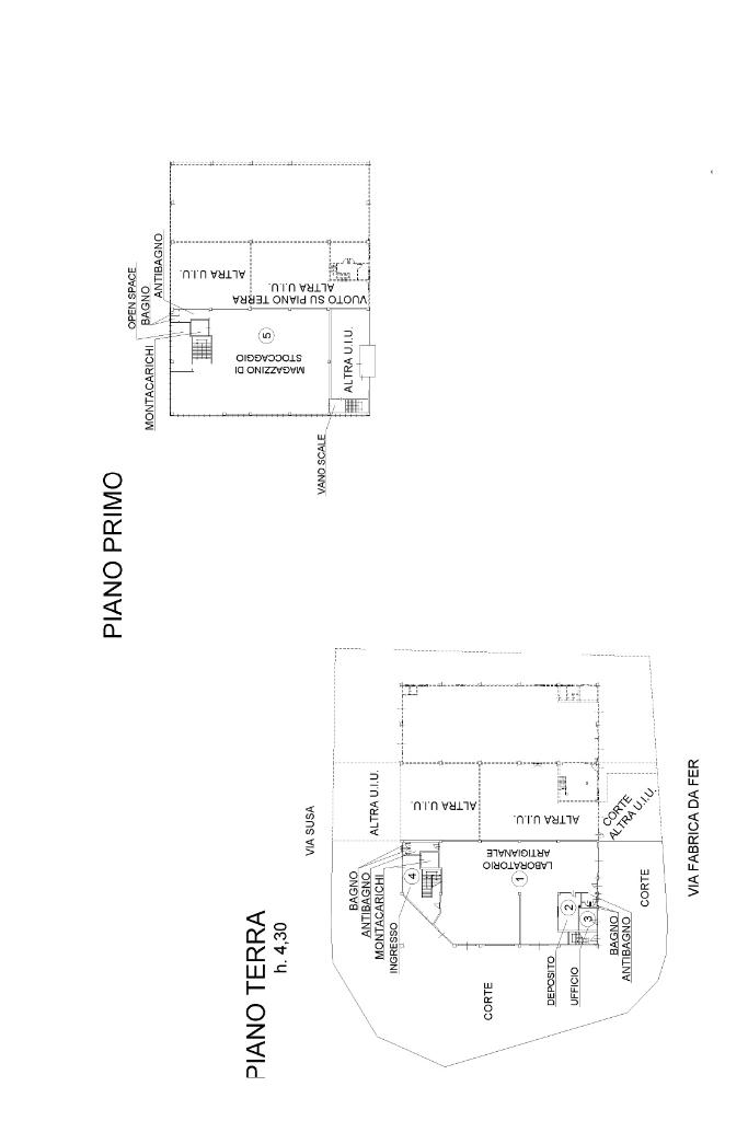
L’immobile si sviluppa su una superficie complessiva di circa 1.300 mq distribuiti su due livelli.

Al piano terreno si trovano due locali ad uso ufficio, due servizi igienici con antibagno e un ampio vano destinato a laboratorio. L’accesso è particolarmente funzionale grazie alla presenza di quattro ingressi indipendenti, carrai dotati di portelloni automatici con meccanismo scorrevole, oltre a quattro pedonali cosi da consentire l’ingresso diretto all’area produttiva. L’altezza massima di una delle aperture è di circa 3,80 metri. Sul medesimo livello è presente un vano scala di ampia metratura che collega il piano terra al piano primo. Nella parte retrostante è inoltre presente un vano grezzo, predisposto per un eventuale installazione di un montacarichi.

Il piano primo,può anch’esso essere accessibile carrabilmente, è caratterizzato da ampie vetrate che garantiscono un’ottima luminosità e visibilità. Su questo livello si sviluppa un ampio locale ad uso magazzino, un ulteriore vano utilizzabile come ufficio e un servizio igienico. Sempre al piano è presente l’accesso al vano scala con porta tagliafuoco, che conduce sia al piano terra sia all’unità abitativa.

L’unità abitativa risulta attualmente locata con contratto di locazione residenziale 4+4, con inquilino regolarmente presente all’interno condizione rappresenta un’opportunità di investimento, garantendo una rendita immediata.

L’appartamento, accessibile sia internamente che dal piano terreno con ingresso indipendente, è composto da disimpegno, bagno finestrato con doccia, cucina abitabile con accesso diretto a un terrazzino ben esposto, soggiorno, due camere da letto e secondo bagno. Gli infissi sono in PVC e l’impianto di riscaldamento è autonomo con caldaia dedicata. La certificazione energetica è : CLASSE ENERGETICA

L'immobile è esente da obbligo di certificazione energetica, ai sensi della normativa vigente, in quanto destinato ad uso produttivo/artigianale e privo di impianti termici.

Mostra tutto

Nelle vicinanze

Trasporto pubblico Trasporto pubblico
stazione di Bussoleno
stazione di Bussoleno
780 m
Bussoleno FS
Bussoleno FS
800 m
Bivio Mattie
Bivio Mattie
880 m
Scuole Scuole
Scuole
1,1 Km
Scuola superiore N.Rosa
1,2 Km
Scuole elementari
1,6 Km
Farmacia Farmacia
Farmacia
980 m
Ospedali Ospedali
Polo Logistico di Protezione Civile
250 m
Supermercati Supermercati
UniEuro
1,9 Km
Carrefour Market
2,0 Km
Negozi Negozi
Forno Giuliano
1,1 Km
Solavaggione alimentari
1,6 Km
Negozi
2,7 Km
Ristoranti Ristoranti
Zia Rosa
1,7 Km
Il Mulino di Mattie
1,9 Km
La Mandragola
2,2 Km
La Baritlera
2,6 Km
Mostra tutto

Caratteristiche

Rif.:
61194524
Piano:
2 di 2 (Piano su più livelli)
Box:
1
Posti auto:
1
Balconi:
1
Condizionamento:
Assente
Mostra tutto
Prezzo Prezzo
€ 215.000
Rata mutuo Rata mutuo
€ 1.021 / mese
Spese annue Spese annue
€ 0
Proponi il tuo prezzoProponi il tuo prezzo

Classe Energetica

E
E
E
E
E
E
E
E
E
EP globale non rinnovabile:
204.00 kW h/m² anno
EP globale rinnovabile:
0.92 kW h/m² anno
EP invernale del fabbricato:
EP estiva del fabbricato:
Riscaldamento:
Assente

Ti interessa visionare l'immobile?

Fissa un appuntamento  Fissa un appuntamento

Richiedi informazioni

Clicca su Leggi per aprire l'informativa
* Questi campi sono obbligatori

Calcola il tuo mutuo

Semplice e senza impegno
Anticipo

( % )
Mutuo

( % )

pochi semplici passi

inserisci i tuoi dati
Questionario completato
Grazie per aver richiesto un appuntamento senza impegno con un nostro Consulente del Credito e Assicurativo.

Hai inserito correttamente tutti i dati necessari e a breve riceverai una e-mail con un link da convalidare per inviare i tuoi dati.
Affiliato
Immobiliare Bussolin Sas
Via Traforo, 12B 10053 Bussoleno (TO)
Via Traforo, 12B 10053 Bussoleno (TO)
Zona: Bussoleno-Chianocco-Bruzolo-San Giorio di Susa
Mostra su mappa
Orari: Dal lunedì al venerdi: 09:30 - 13:00 / 15:00 - 19:00 ; il Sabato 09:30 - 13:00 / 15:00 - 19:00.
Affiliato
Immobiliare Bussolin Sas
Via Traforo, 12B 10053 Bussoleno (TO)

2026 Tecnocasa Franchising S.p.A. - P. IVA 08365160152 - Via Monte Bianco 60/A 20089 Rozzano (MI). Ogni agenzia ha un proprio titolare ed è autonoma. Privacy policy | Policy utilizzo | Cookie policy